Proponiamo in vendita appartamento con spazi esterni godibili per una superficie totale commerciale di mq. 120 situato in posizione tranquilla a pochi passi dal centro di Sestri Levante e dalle sue splendide spiagge.
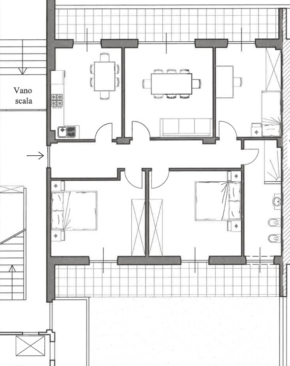
L’immobile si trova al piano rialzato, si presenta con una pianta regolare ben distribuita ed è composto da: ingresso, cucina abitabile, sala, tre stanze luminose ideali come camere da letto o studio, bagno finestrato, corridoio centrale che collega tutti gli ambienti, balcone sul frontale al quale si accede dalla zona giorno, grande terrazzo con giardino pensile sul retro perfetto per pranzi all’aperto o momenti di relax.
L’ esposizione a sud assicura all’appartamento ottima luminosità durante tutto il giorno.
L’immobile pur essendo in buono stato di conservazione, offre la possibilità di personalizzare gli spazi secondo le proprie esigenze.
Completano la proprietà un box auto, una cantina perfetta come deposito e un posto auto scoperto condominiale.
Soluzione ideale per famiglie uso residenziale, casa vacanze o investimento.
Per informazioni e dettagli contattare l’ agenzia.
agenzia@immobiliarele2baie.it
agenziale2baie@gmail.com
3407478175
3791426124















